Kitchen Corner Kitchen Cabinet Kitchen Cabinets Upper Corner Cabinet

Kitchen Corner Kitchen Cabinet Kitchen Cabinets Upper Corner Cabinet

Wall Kitchen Corner Cabinet Corner Kitchen Cabinet Kitchen Corner Kitchen Wall Cabinets

Wall Kitchen Corner Cabinet Corner Kitchen Cabinet Kitchen Corner Kitchen Wall Cabinets

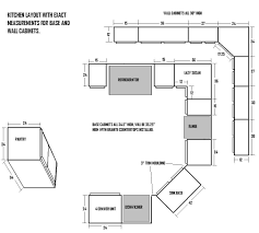
Kitchen Corner Cabinet Dimensions Kitchen Cabinet Sizes And Dimensions Getting Them Right Corner Kitchen Cabinet Kitchen Cabinet Sizes Kitchen Corner Units

Kitchen Corner Cabinet Dimensions Kitchen Cabinet Sizes And Dimensions Getting Them Right Corner Kitchen Cabinet Kitchen Cabinet Sizes Kitchen Corner Units

Upper Corner Cabinet Organizer Home Design Ideas Corner Kitchen Cabinet Kitchen Cabinets Design Layout Upper Kitchen Cabinets

Upper Corner Cabinet Organizer Home Design Ideas Corner Kitchen Cabinet Kitchen Cabinets Design Layout Upper Kitchen Cabinets

Upper Corner Kitchen Cabinet Solutions Corner Kitchen Cabinet Upper Kitchen Cabinets New Kitchen Cabinets

Upper Corner Kitchen Cabinet Solutions Corner Kitchen Cabinet Upper Kitchen Cabinets New Kitchen Cabinets

Pin On Ellis Street Apartment

Pin On Ellis Street Apartment

Pin On Ellis Street Apartment

Wall Kitchen Corner Cabinet Corner Kitchen Cabinet Kitchen Cabinet Plans Diy Cabinets

Wall Kitchen Corner Cabinet Corner Kitchen Cabinet Kitchen Cabinet Plans Diy Cabinets

Upper Corner Kitchen Cabinet Solutions Corner Kitchen Cabinet Upper Kitchen Cabinets Kitchen Corner Cupboard

Upper Corner Kitchen Cabinet Solutions Corner Kitchen Cabinet Upper Kitchen Cabinets Kitchen Corner Cupboard

Corner Upper Kitchen Cabinets Cdxnd Com Home Design In Pictures Corner Kitchen Cabinet Kitchen Cabinet Storage Solutions Kitchen Cupboard Storage

Corner Upper Kitchen Cabinets Cdxnd Com Home Design In Pictures Corner Kitchen Cabinet Kitchen Cabinet Storage Solutions Kitchen Cupboard Storage

Cabana White Wall Diagonal Glass Door Corner Cabinet 27 W X 36 H X 15 D Cabinets For Sale Glass Cabinet Doors Kitchen Cabinets Prices

Cabana White Wall Diagonal Glass Door Corner Cabinet 27 W X 36 H X 15 D Cabinets For Sale Glass Cabinet Doors Kitchen Cabinets Prices

Kitchen Cabinets Sizes Standard Base Cabinet Height Which Includes The Plus Countert Kitchen Cabinet Dimensions Kitchen Cabinets Canada Kitchen Cabinets Height

Kitchen Cabinets Sizes Standard Base Cabinet Height Which Includes The Plus Countert Kitchen Cabinet Dimensions Kitchen Cabinets Canada Kitchen Cabinets Height

Jaimie Rueter Uploaded This Image To Jrueter Kitchen See The Album On Photobucket Corner Kitchen Cabinet Upper Kitchen Cabinets Kitchen Corner Cupboard

Jaimie Rueter Uploaded This Image To Jrueter Kitchen See The Album On Photobucket Corner Kitchen Cabinet Upper Kitchen Cabinets Kitchen Corner Cupboard

Type Of Corner Kitchen Cabinets How To Organize Upper Corner Kitchen Cabinet 5 Guides Using The Right Corner Kitchen Cabinet Kitchen Corner Kitchen Remodel

Type Of Corner Kitchen Cabinets How To Organize Upper Corner Kitchen Cabinet 5 Guides Using The Right Corner Kitchen Cabinet Kitchen Corner Kitchen Remodel

Standard Cabinet Height Kitchen Kitchen Cabinet Sizes Chart Standard Height Of Upper Kitch Kitchen Corner Cupboard Corner Kitchen Cabinet Corner Pantry Cabinet

Standard Cabinet Height Kitchen Kitchen Cabinet Sizes Chart Standard Height Of Upper Kitch Kitchen Corner Cupboard Corner Kitchen Cabinet Corner Pantry Cabinet

Pin On Kitchen Cabinets

Pin On Kitchen Cabinets

Corner Cabinet Heaven No More Reaching Behind Trying To Find The Things In The Hidden Corner Kitchen Cabinet Upper Kitchen Cabinets Corner Cabinet Solutions

Corner Cabinet Heaven No More Reaching Behind Trying To Find The Things In The Hidden Corner Kitchen Cabinet Upper Kitchen Cabinets Corner Cabinet Solutions

42 Ideas For Kitchen Layout Corner Upper Cabinets Corner Kitchen Cabinet Corner Pantry Upper Cabinets

42 Ideas For Kitchen Layout Corner Upper Cabinets Corner Kitchen Cabinet Corner Pantry Upper Cabinets

Kitchen Accessories Furniture Corner Kitchen Cabinet Kitchen Cabinet Remodel New Kitchen Cabinets

Kitchen Accessories Furniture Corner Kitchen Cabinet Kitchen Cabinet Remodel New Kitchen Cabinets

46 Corner Kitchen Cabinets Ideas That Optimize Your Kitchen Space Part 3 In 2020 Corner Sink Kitchen Upper Kitchen Cabinets Kitchen Cabinets Decor

46 Corner Kitchen Cabinets Ideas That Optimize Your Kitchen Space Part 3 In 2020 Corner Sink Kitchen Upper Kitchen Cabinets Kitchen Cabinets Decor

Small Kitchen Remodel Ideas In 2020 Corner Kitchen Cabinet Kitchen Corner Cupboard Upper Kitchen Cabinets

Small Kitchen Remodel Ideas In 2020 Corner Kitchen Cabinet Kitchen Corner Cupboard Upper Kitchen Cabinets

Source : pinterest.com
Social bar :