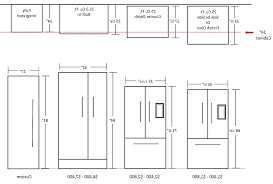
Images Average Refrigerator Size Refrigerator Dimensions Refrigerator Sizes Fridge Sizes

Images Average Refrigerator Size Refrigerator Dimensions Refrigerator Sizes Fridge Sizes

Pin On Cuisine

Pin On Cuisine

20 Above Refrigerator Cabinet Size Kitchen Cabinets Update Ideas On A Budget Check More A Kitchen Cabinets Height Kitchen Base Cabinets Refrigerator Cabinet

20 Above Refrigerator Cabinet Size Kitchen Cabinets Update Ideas On A Budget Check More A Kitchen Cabinets Height Kitchen Base Cabinets Refrigerator Cabinet

Encapsulate Refrigerator And Bring Countertops Forward For A Custom Built In Look Kitchen Cabinet Remodel Kitchen Refrigerator Cabinet

Encapsulate Refrigerator And Bring Countertops Forward For A Custom Built In Look Kitchen Cabinet Remodel Kitchen Refrigerator Cabinet

Pin Di Hondudiariohn Com

Pin Di Hondudiariohn Com

The Top 5 Regular Counter Cabinet Depth Refrigerator To See Home Microwave In Kitchen Home Kitchens Kitchen Wall Cabinets

The Top 5 Regular Counter Cabinet Depth Refrigerator To See Home Microwave In Kitchen Home Kitchens Kitchen Wall Cabinets

The Top 5 Regular Counter Cabinet Depth Refrigerator To See Home Microwave In Kitchen Home Kitchens Kitchen Wall Cabinets

Image Result For Refrigerator Dimensions Refrigerator Dimensions Refrigerator Sizes Counter Depth Refrigerator Measurements

Image Result For Refrigerator Dimensions Refrigerator Dimensions Refrigerator Sizes Counter Depth Refrigerator Measurements

Ideas Nice Kitchen Cabinet Sizes Cabinet Depth Standard Size Kitchen Cabinets Depth Of Pict Kitchen Cabinet Dimensions Cabinet Dimensions Kitchen Wall Cabinets

Ideas Nice Kitchen Cabinet Sizes Cabinet Depth Standard Size Kitchen Cabinets Depth Of Pict Kitchen Cabinet Dimensions Cabinet Dimensions Kitchen Wall Cabinets

Storage Measurement Capacity Counter Depth Refrigerator Dimensions Refrigerator Dimensions Counter Depth Refrigerator

Storage Measurement Capacity Counter Depth Refrigerator Dimensions Refrigerator Dimensions Counter Depth Refrigerator

Small White Kitchens Small White Kitchens Cabinet Depth Refrigerator Corner Kitchen Cabinet

Small White Kitchens Small White Kitchens Cabinet Depth Refrigerator Corner Kitchen Cabinet

Learn Why Counter Depth Fridges Are Not Counter Deep Counter Depth Refrigerator Dimensions Cabinet Depth Refrigerator Refrigerator Dimensions

Learn Why Counter Depth Fridges Are Not Counter Deep Counter Depth Refrigerator Dimensions Cabinet Depth Refrigerator Refrigerator Dimensions

Built In Fridge Measurements Living Room Designs Room Design Design

Built In Fridge Measurements Living Room Designs Room Design Design

New Kitchen Aid French Door Counter Depth Refrigerator Kitchen Design Kitchen Remodel New Kitchen

New Kitchen Aid French Door Counter Depth Refrigerator Kitchen Design Kitchen Remodel New Kitchen

Before And After Kitchen Renovation L Kae Interiors Budget Kitchen Remodel Farmhouse Kitchen Remodel Kitchen Remodeling Projects

Before And After Kitchen Renovation L Kae Interiors Budget Kitchen Remodel Farmhouse Kitchen Remodel Kitchen Remodeling Projects

Fridge Wrap Around Pantry Kitchen Pantry Design Kitchen Pantry Cabinets Pantry Wall

Fridge Wrap Around Pantry Kitchen Pantry Design Kitchen Pantry Cabinets Pantry Wall

Make The Refrigerator Look Built In With Cabinet Surround Shaker Kitchen Cabinets Kitchen Cabinets Refrigerator Cabinet

Make The Refrigerator Look Built In With Cabinet Surround Shaker Kitchen Cabinets Kitchen Cabinets Refrigerator Cabinet

Wine Storage Above Refrigerator Kitchen Home Kitchens White Kitchen

Wine Storage Above Refrigerator Kitchen Home Kitchens White Kitchen

Refrigerator Surround Cabinets Re Cabinet Depth Refrigerator Kitchen Rustic Kitchen Design Kitchen Remodel

Refrigerator Surround Cabinets Re Cabinet Depth Refrigerator Kitchen Rustic Kitchen Design Kitchen Remodel

Pin On Dream Kitchen

Pin On Dream Kitchen

32 Kitchen Cabinets Around Refrigerator For More Storage Space Farmhouse Kitchen Design Kitchen Layout Kitchen Cabinet Design

32 Kitchen Cabinets Around Refrigerator For More Storage Space Farmhouse Kitchen Design Kitchen Layout Kitchen Cabinet Design

Source : pinterest.com
Social bar :